JHU Lab Renovation

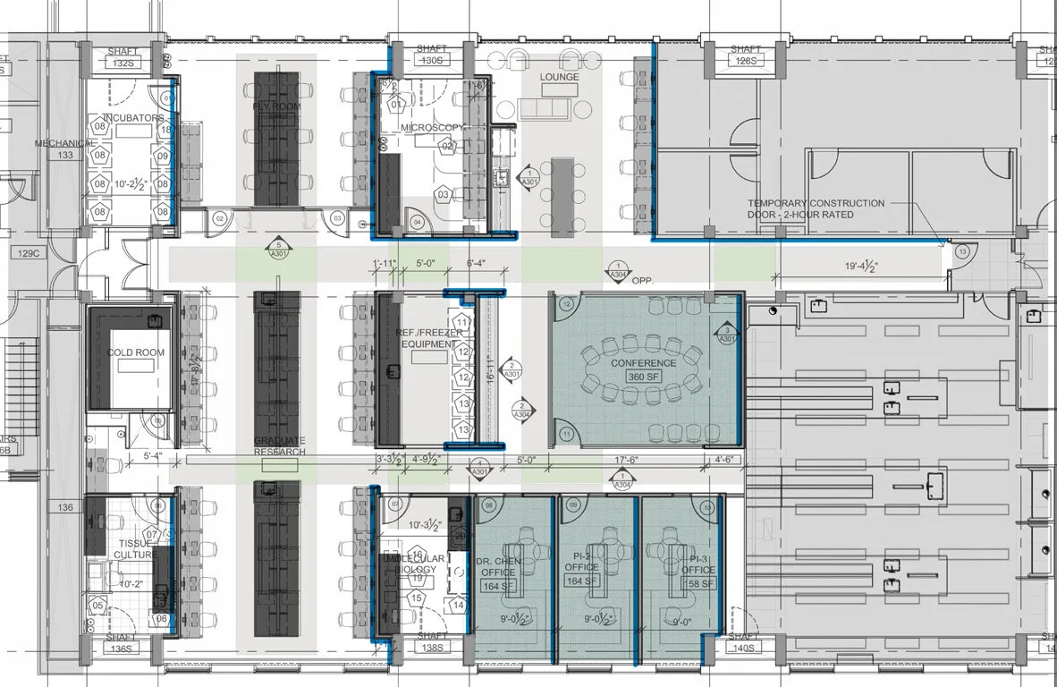
This 8,000sf laboratory was designed for a prominent researcher in the field of genetics at Johns Hopkins University, Krieger School of Arts and Sciences. The design team was tasked with transforming an outdated laboratory space into a $1.7M state-of the-art research, teaching and office suite. Program spaces included open area graduate research labs, microscopy lab, tissue culture lab, molecular biology lab, cold room, specialty equipment rooms and an office suite. A large centralized conference room receives natural light on two sides through all-glass walls. The offices take advantage of perimeter windows and are in close proximity to the conference room.

Location: Baltimore, MD | Year: 2017 | Firm: Colimore Architects | Project Type: Higher Education / Lab Planning

Area: 16,000SF | Responsibility: Architectural Designer in SD & CD

 

Images are courtesy of Colimore Architects

Previous
Previous

Paleontology Collection Building

Next
Next

JHU PULSE Lab